依水始木
指导老师:蒋耿民
指导老师:丁轲
队长:刘佳佳
队员:曹燕
队员:李明昊
队员:张烜峥
队员:郭顺利
团队介绍:
我们是来自南阳师范学院南师BIM中心的“依水始木”小组,南师BIM中心成立于2015年9月,精修于己,人必慕之,是我们的座右铭,它表示着只要我们以高标准、严要求来约束自己,我们就一定能有所作为,得到别人的尊敬与敬佩。我们的指导老师蒋耿民是水专业博士,丁轲老师是BIM工程师,在本次项目中给予我们很大帮助。“依水始木”是指团队成员中一个为给排水专业,四个土木专业,不同的专业帮助我们更好的进行下项目任务的合理分配,并且更专业化。
项目介绍:
本产业园分为南北两栋,地下一层,地上六层,建筑高度26.1米,总建筑面积22488.81平方米,属于框架结构。建筑耐火等级为二级,建筑主体共设置疏散楼梯两部,抗震设防烈度为7度,建筑抗震设防类别为标准设防(丙类)。建筑设计使用年限为50年。 项目重难点:机电专业管线错综复杂、建筑使用功能要求高、施工工期紧张、工种工序较多,交叉作业组织难度较大、施工场地狭小,施工难度大。
应用点1:

管综优化:在优化原则基础上及符合设计要求、不影响系统使用功能、建筑结构的要求前提下,综合考虑后期安装及维护的工作空间、支吊架的安装利用,进行模型深化,使得水、暖、电的排布更整齐美观。
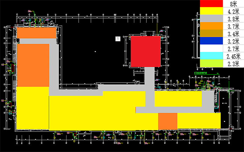
应用点2:

净高分析:在模型深化过程中要时刻注意是否满足净高要求,能够尽早发现净高问题,最大限度地优化净高。使我们不仅能够通过优化管线路径的手段来优化净高,还能够通过调整结构来实现该目的,在本项目中,对每一层的走廊出及重要的功能设备房间进行净高分析,征求业主建议,确定最终净高。
应用点3:

深化出图:根据优化后的模型导出各施工图,包括各专业平面图、剖面图、复杂节点详图,设备房位置平面图等,大大提高了出图速度,更好的指导施工。
应用点4:

施工进度计划:三维模型配合施工顺序时间可形成4D模型,通过空间及时间的呈现,更能给人直觉式的感受正式开工前进行设计的变更或是施工计划的调整,提早发现并排除冲突,让拟定的施工计划更具有效率、整合性及完整性。
应用点5:

工程量:工程量清单是工程付款和结算的依据。发包人根据承包人是否完成工程量清单规定的内容以投标时在工程量清单中所报的单价作为支付工程进度款和进行结算的依据。将三维模型和图纸导入鲁班算量,通过软件强大的自动拾取功能及手动输入钢筋信息,进行工程量的统计。
| 团队登录 | |
| 账号: | |
| 密码: | |